住みやすく、住み飽きない
“ SOJIの家 ”
-時間を経て、変わるもの、変わらないもの-
家は、長年にわたり、お住まいになるご家族等の生活を支える「家族の器」です。
厳選した国産材・地域材をふんだんに使用したこの家は、計算された構造による安全性に加え、無垢の経年美も楽しめます。さらに、お住まいの方々のライフステージによって間取りの変更が容易に叶う広々としたシンプルな空間設計を備えました。
長くお住まい頂くために、家族の「いま」と「みらい」に寄り添い、ともに容(かたち)をかえていく。それが私たちのご提案する「SOJIの家(そじのいえ)」です。
OUR STORY
わたしたち住まい工房ナルシマは、取手市を拠点に30年に渡り茨城県南エリアで新築累計約400棟、地域のみなさまのお困りごと・ご要望に寄り添ったリフォームを 累計約600組、実績工事数としては3600件を超える住まいに関するお手伝いをしてまいりました。
この度「SOJIの家」を企画するにあたり、これまでの施工経験を基にご家族の「いま」だけでなく「みらい」にも寄り添える、最適解を導きました。 住み飽きず、いつまでたっても心地よい、そんな空気に満たされた、「暮らしの素地」となる家をご提案できれば幸いです。
5つの特徴
住まい工房ナルシマのコンセプトハウス「SOJIの家」は、ナルシマがつくる注文住宅でも建売住宅でもないセミオーダー住宅です。「SOJIの家」には5つの特徴があります。
1
開放感があるのに安心安全な構造

力学的に証明された安心安全な生活空間。無駄な壁がないため、耐震等級3という最高等級を取りながらも開放感のある間取りを実現。許容応力度計算という構造計算から導き出した柱梁の組み方は、力の流れに一切の無駄がなく、余分な材料を使わない分、コストパフォーマンスも高いです。
2
一緒に子育てする家

生活動線の設計を最適化することで日々のルーティーン負担を軽減。キッチン・洗面・お風呂が一直線で家事効率が向上。 また、家じゅういつでもどこにいても夏は涼しく冬は暖かいため、「脱衣所が寒くてお風呂上りは急いで身体を拭くのが大変」「夜中夜泣きで起きると廊下が寒い」といったこともなく、子育てにも優しい設計です。
3
フレキシブルな間取り
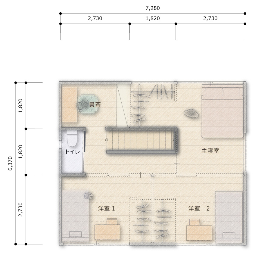
2階は間仕切り壁や家具を自由に設定し、自分たちに合わせた間取りにすることが出来ます。吹き抜けのあるどこにいても家族の気配を感じる、開放的で一体感のある暮らしも良し。家具で囲まれた書斎を作るもよし。さらに生活の変化に合わせて、数年後に間仕切りを変更することも容易です。
4
自然の木でつくる家

100年の歴史を持つ材木屋から始まったナルシマの経験を活かし、厳しい目利きで選んだ本物の無垢材をふんだんに使用しています。時間とともに変化する味わいを楽しみ、この経年変化が家族の歴史の一部となり、足裏に伝わるぬくもりや、階段を上るときの柔らかな感触など、 無垢材でないと感じることができない温度・質感が日々の暮らしを彩ります。
5
作り手の顔が見える家づくり

私たちの建てる家は、全て顔の見える作り手が担当します。 個性のある多様な自然素材を扱うには、職人の熟練した技術が必須です。 例えば家づくりの軸となる大工棟梁は、素材となる木の特性を知り尽くし、木目や反りを見極めて、材料を自在に扱い、一棟一棟異なる自然素材の家を細部にまで目を配り、丹精込めてつくりあげます。先人からの伝統技術を未来につなげていくことも大切な使命と考えています。
基本情報
土地の形状や周辺環境に合わせて、最適なプランを提案します。
- 床面積:92.68㎡(28坪)
- 建物階数:2階建て
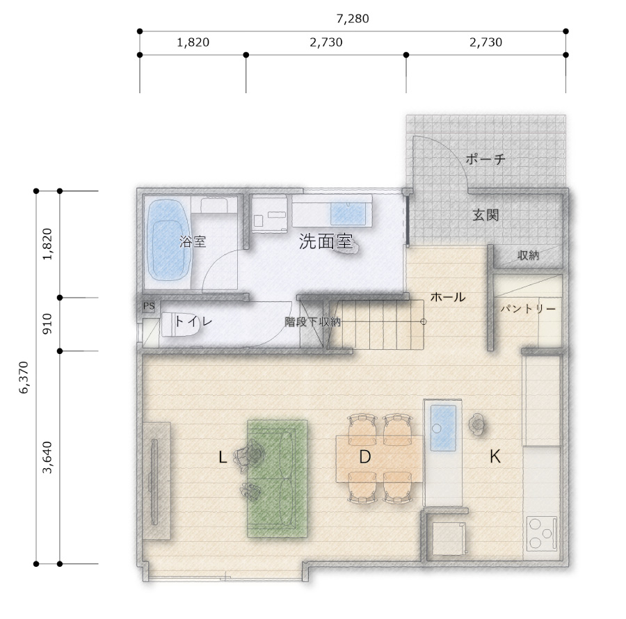
- 一階:LDK+水回り
- 二階:間仕切り変更可能な大空間
- 建物構造:木造
本体価格+標準付帯工事
▶ 2800万円 (税込)~
※間仕切り・仕様変更などオプション有。
※土地代・カーテン・エアコン・外構・浄化槽・上下水道取り出し工事・雨水排水・給水工事・地盤改良等は含まれていません。
※土地形状により別途費用が必要となる項目があります。
建築エリア
取手市、守谷市、つくばみらい市、龍ヶ崎市、土浦市、常総市、牛久市、つくば市、利根町、阿見町、千葉県我孫子市、柏市
※その他エリアご希望の際はご相談ください
モニター募集中
下記のモニター条件を
ご了承いただけるお客様に、
特典をご用意しております
- 完成後、一定期間モデルハウスとして使用
- 外観、内観の写真や動画撮影
- 画像や動画を、SNS・HP・広告などへの掲載
2,800万円の
内訳について
ナルシマのSOJIの家は
「コミコミ」価格なんです!
よくある住宅会社の金額構成
仕様
| 屋根 | コロニアル |
|---|---|
| 外壁 | サイデイング |
| 外部建具 | 樹脂サッシ(Low-eガラス) |
| 内装ドア枠 | ウッドワン・ドレタス |
| 玄関ドア | 断熱玄関ドア |
| 内壁 | ビニルクロス |
| 床材 | 無垢フローリング |
| 洗面台 | 3面鏡付き洗面化粧台 W750 |
| トイレ | ウォシュレット®一体形便器 |
| キッチン | グラフテクト |
性能
耐震等級3
(許容応力度計算)
日本の最高レベル。消防署や警察署等の防災の拠点となる建物の耐震性です。
長期優良住宅
「長期優良住宅の普及の促進に関する法律」の基準をクリアし、認定を受けている家。劣化対策や、耐震性、省エネルギー性などの住宅性能が高いです。
省令準耐火構造
燃えにくい木造住宅。これにより安心安全なだけでなく火災保険料が約半額~6割引きになります。
維持管理のしやすさ
自然素材を使い、大きな修理を必要とせず、簡単なメンテナンスで長期間安心して暮らせるような家づくりを実現します。
家全体にわたって、細部にまでこだわりが感じられ、
住む人に快適さと満足感を提供します!






